Grit washer
The CDL – GRIT WASHER is used for the separation of sandy materials contained in waste water, and for the simultaneous washing of the organic substances.
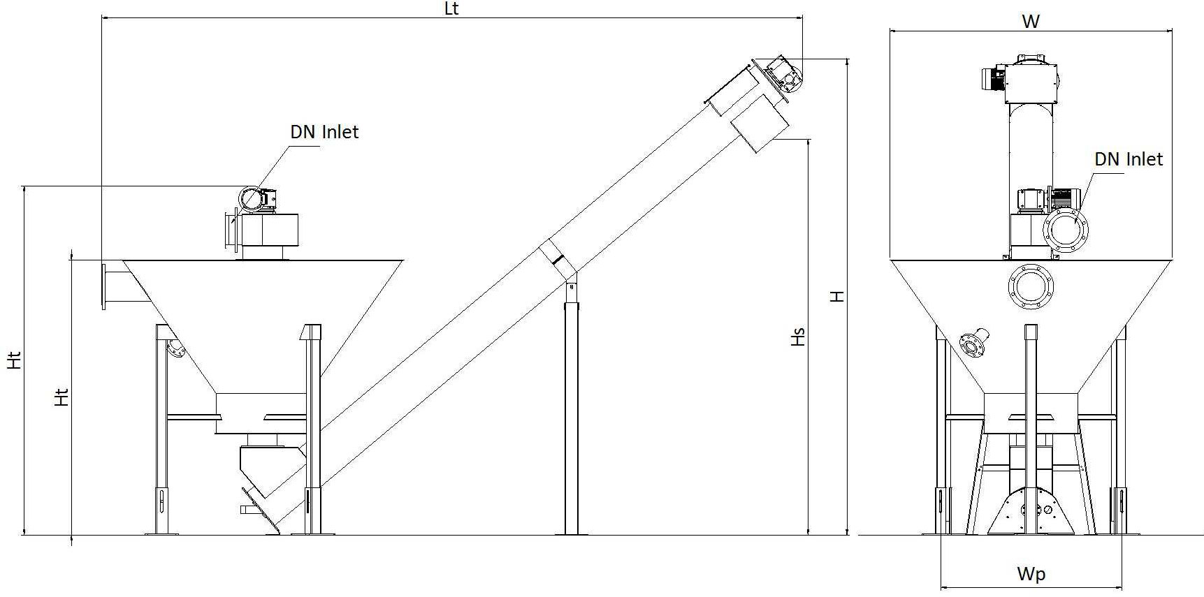
It is constituted by a conical hopper decantation equipped with a stirring system, connected to a spiral for extracting solid with central shaft.
The spiral auger is normally connected directly to the motor via flanged shaft. In the bottom of the hopper is a clean water inlet system in countercurrent which has the purpose of removing the organic substances present in the sands.
The water entering into the hopper, through the inlet spiral, is kept in motion by the agitator central that a rotational movement. This has the purpose to facilitate the sedimentation of the sand and at the same time to maintain suspension of the organic material.
The sand, in its journey toward the bottom is further from the clean water wash fed in countercurrent, to then be extracted from the cochlea.
The counter flow water also has the task of facilitating the ascent of the organic substances, which are then evacuated at regular intervals by dedicate exhaust duct.
The clarified water is instead evacuated by a second duct placed in the upper part of the conical hopper. The continuous rotational motion of the water mass allows the sand to pass from the hopper to the discharge auger, which conveys the output.
CDL – Theoretical flowrates

The CDL can be manufactured in Stainless Steel AISI304-316 (L), and is fully customizable according to the customer needs, but anyways we offer a standard range which can help the costumer in his final choose:
CDL – Standard Dimensions



Drive & Automation
Industrial Applications
Water & Waste Water
Services






